Best Value For Money

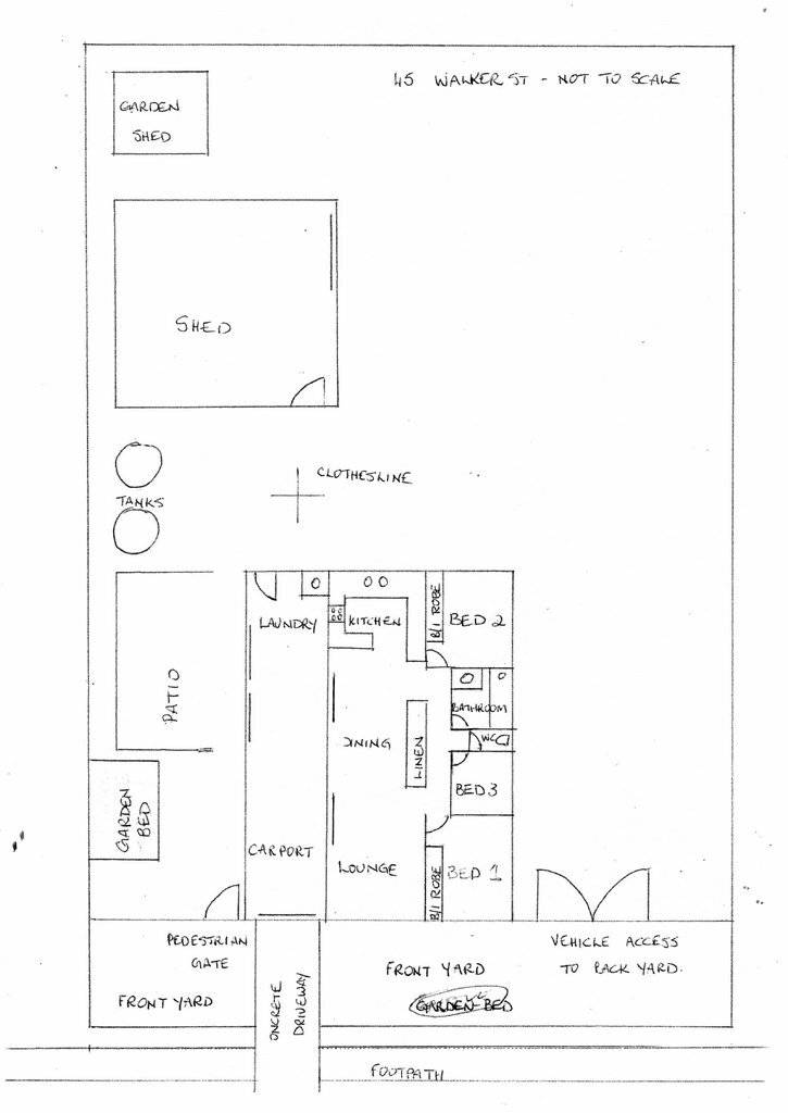
Just  a short walk from the both the cricket pitch in one direction and the football oval in the other, this 3 bedroom masonry block home offers an open plan living and dining area, a good kitchen with plenty of cupboards and an internal laundry. The 1,012m2 property has a concrete driveway from the road to the enclosed carport, paved fenced open area and enclosed patio, and a fully fenced back yard. The jewel in the crown of this property is the large 7m x 6m colourbond lockable garage/shed/workshop. With rental properties in high demand, the house is ideal for investment as a quality rental property, being fully security screened and air-conditioned. Features include: 

3 bedrooms (2 with built-in floor to ceiling wardrobes)  

Spacious kitchen with rangehood over gas stove and oven, and overhead cupboards 

Open plan living and dining area  

Large storage cupboards in hallway

Bathroom with shower over tub

Internal laundry and enclosed carport with remote controlled tilt-a-door

Full security screening and split-system air-conditioning and all newly installed fans 

Council approved enclosed and insulated patio approx. 6m x 3.5m (Built 2022)

Council approved 7m x 6m colourbond shed and workshop with one bay with roller door for vehicles and one bay for a workshop (Built 2022). Built extra strong.

2 rainwater tanks for good water, and an extra garden shed

Fully fenced back yard with vehicle access and pedestrian gates

Close proximity to Botanic Gardens, the cricket pitch, football oval and Finch Bay and walking distance to town

 

Features

Terrace/Paved Outdoor entertainment area Undercover outdoor area Fenced Wheelchair access Low maintenance Safety Switch Smoke Alarms RCDs Garage Remote Pay TV Ready Broadband Internet Ready Level Block Water Tank Security screens Secure Parking
3 1 3 1,012 m2
Address 45 Walker St, Cooktown
Price SOLD
Property Type Residential
Property ID 114
Category House
Land Area 1,012 m2

Agent Details

Karen Thomas photo

Karen Thomas

0417 848 966
View Profile